|
Сбросной трубопровод
|
|
| Абитуриент | Дата: Вторник, 22.12.2009, 12:33 | Сообщение # 1 |
|
Группа: Абитуриент
| Подводится газ к навесному котлу 34 кВт, в помещении топочной устанавливается регулятор с ПЗК и ПСК. Вопрос нужно ли вести сбросной трубопровод от регулятора на улицу? Если можна ссылочку на нормативы(Украина)! И если регулятор будет находится на улице нужно ли вести сбросник выше крыши? Пообщавшись с монтажниками, они сказали мне что при сдаче обьекта в эксплуатацию они устанавливают трубопроводы, а потом заказчик сам срезает их из за эстетических соображений. По поводу сбросных трубопроводов в литературе внятного обяснения найти не могу! Если можете помогите пожалуйста разобраться!
|
| |
|
|
| StaG | Дата: Вторник, 22.12.2009, 12:58 | Сообщение # 2 |
|
Помощник ГИП
Группа: Друзья
Сообщений: 475
Репутация: 12
Город: Donetsk Замечания: 0%
Статус: Оффлайн
| Продувочные и сбросные трубопроводы следует выводить наружу в места, обеспечивающие безопасные условия для рассеивания газа, но не менее чем на 1 м выше карниза крыши или парапета здания.
|
| |
|
|
| Абитуриент | Дата: Вторник, 22.12.2009, 14:24 | Сообщение # 3 |
|
Группа: Абитуриент
| А в каком документе я могу это прочитать?
|
| |
|
|
| StaG | Дата: Вторник, 22.12.2009, 14:49 | Сообщение # 4 |
|
Помощник ГИП
Группа: Друзья
Сообщений: 475
Репутация: 12
Город: Donetsk Замечания: 0%
Статус: Оффлайн
| Абитуриент, ДБН В.2.5-20-2001 "Инженерное оборудование зданий и сооружений Внешние сети и сооружения. ГАЗОСНАБЖЕНИЕ" это для Украины.
|
| |
|
|
| Абитуриент | Дата: Вторник, 22.12.2009, 15:11 | Сообщение # 5 |
|
Группа: Абитуриент
| В ДБН В.2.5-20-2001 написано только о продувочных трубопроводах для промышленых предприятий п. 6,25. О сбросных я ничего не нашол к сожалению!
|
| |
|
|
| StaG | Дата: Вторник, 22.12.2009, 15:42 | Сообщение # 6 |
|
Помощник ГИП
Группа: Друзья
Сообщений: 475
Репутация: 12
Город: Donetsk Замечания: 0%
Статус: Оффлайн
| параграф Газорегуляторные установки 5.31 Допускается установка в производственных зданиях, в том числе в котельных газорегуляторных пунктов шкафного типа в качестве ГРУ, при выполнении следующих условий: - сплошные двери шкафа следует заменить сетчатыми или демонтировать; - сбросные трубопроводы от предохранительных сбросных клапанов (далее - ПСК) и от предохранительно-запорных клапанов (далее - ПЗК), которые конструктивно выполнены таким образом, что для открытия их нужно сбрасывать газ, необходимо вывести за пределы помещения в соответствии с требованиями настоящих норм, предъ-являемыми к сбросным и продувочным трубопроводам. Параграф Оборудование ГРП, ГРПБ, ШРП и ГРУ 5.43 В ГРП, ГРПБ, ШРП и ГРУ следует предусматривать систему продувочных и сбросных трубопроводов, обеспечивающих удаление воздуха из газопроводов, а также очистку их внутренней полости. Продувочные трубопроводы следует размещать: - на входном газопроводе после первого отключающего устройства; - на обводном газопроводе (байпасе) между двумя отключающими устройствами; - на участках газопровода с оборудованием, отключаемым для производства профилактического осмотра и ре-монта. Условный диаметр продувочного трубопровода должен быть не менее 20 мм. Допускается объединять продувочные трубопроводы одинакового давления в общий продувочный трубопро-вод. Условный диаметр сбросного трубопровода, отводящего газ от ПСК, должен быть равен условному диаметру выходного патрубка клапана, но не менее 20 мм. Продувочные и сбросные трубопроводы следует выводить наружу в места, обеспечивающие безопасные усло-вия для рассеивания газа, но не менее чем на 1 м выше карниза крыши или парапета здания. Также посмотрите раздел 6 пункты 6.40 и далее и раздел 11. Пункт 6.25 относится к промышленным и сельскохозяйственным предприятиям и крупным котельным. Скажите зачем Вы устраиваете ГРУ при установке бытового котла, у Вас что подводится среднее давление?
Сообщение отредактировал StaG - Вторник, 22.12.2009, 15:45 |
| |
|
|
| Абитуриент | Дата: Вторник, 22.12.2009, 16:11 | Сообщение # 7 |
|
Группа: Абитуриент
| Да подходит среднее давление, а заказчик принципиально не хочет ставить ШРП!
|
| |
|
|
| juli303 | Дата: Среда, 13.08.2025, 17:23 | Сообщение # 8 |
Начинающий проектировщик
Группа: Пользователи
Сообщений: 24
Репутация: 0
Город: Крылатый Замечания: 0%
Статус: Оффлайн
| Коллеги, здравствуйте! Прощу прощения возможно за глупый вопрос, но требуется ваша помощь. Проектирую обвязку газовой горелки внутри цеха, перед горелкой устанавливается регулятор Madas RG/2MB Мини. Для регулятора мне необходимо предусмотреть сбросной газопровод, но куда мне его вывести понять не могу. Объединить его с существующим продувочным газопроводом нельзя, но и вывести отдельный трубопровод наверно не совсем нецелесообразно, так как вести его от этого несчастного регулятора придётся далеко. В самом цехе сброс стравить же тоже нельзя? Как бы вы поступили в этом случае?
|
| |
|
|
| gaspar | Дата: Среда, 13.08.2025, 19:23 | Сообщение # 9 |
супер ГИП
Группа: Советник
Сообщений: 3674
Репутация: 293
Город: На Оке Замечания: 0%
Статус: Оффлайн
| Нужно выводить наружу через стену или кровлю - на 1 метр выше примыкающей части кровли. Внутрь нельзя сбрасывать
|
| |
|
|
| projectgts | Дата: Четверг, 14.08.2025, 08:21 | Сообщение # 10 |
Начинающий проектировщик
Группа: Пользователи
Сообщений: 20
Репутация: 0
Город: Самара Замечания: 0%
Статус: Оффлайн
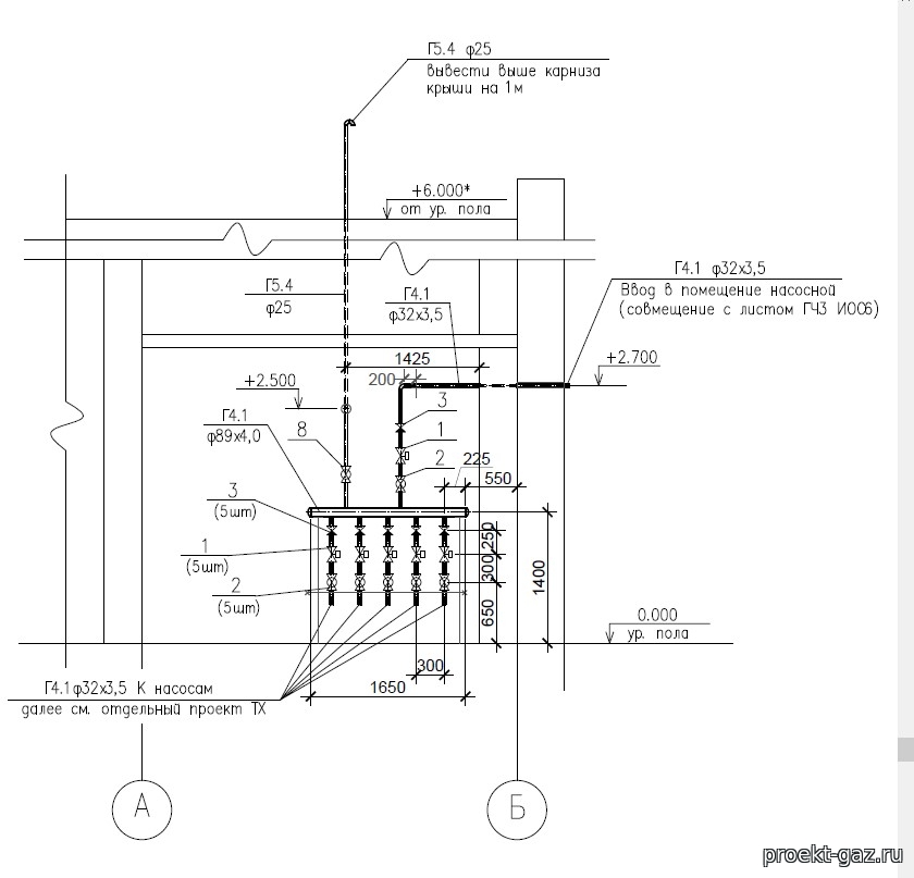
| Дополню вышесказанные слова оратора примером чертежа, как из насосной показан выход сбросной свечи ду25
|
| |
|
|
| juli303 | Дата: Четверг, 14.08.2025, 09:14 | Сообщение # 11 |
Начинающий проектировщик
Группа: Пользователи
Сообщений: 24
Репутация: 0
Город: Крылатый Замечания: 0%
Статус: Оффлайн
| Всех благодарю за ответ!
|
| |
|
|
| Y_2 | Дата: Четверг, 14.08.2025, 10:40 | Сообщение # 12 |
Опытный проектировщик
Группа: Чертежник
Сообщений: 99
Репутация: 14
Город: Чебоксары Замечания: 0%
Статус: Оффлайн
| Добрый день!
Как вариант - случае установки перед горелкой, если регулятор является регулятором-стабилизатором, то наличие ПСК в нём не обязательно (СП 42-101-2003 п.6.37). В конкретно данной модели Madas RB/2MB мини работу встроенно ПСК можно исключить (см. Паспорт).
|
| |
|
|
| juli303 | Дата: Четверг, 14.08.2025, 11:15 | Сообщение # 13 |
Начинающий проектировщик
Группа: Пользователи
Сообщений: 24
Репутация: 0
Город: Крылатый Замечания: 0%
Статус: Оффлайн
| Y_2, спасибо Вам, нашла данную формулировку в паспорте. То есть тогда получается с регулятора ничего выводить не надо и остаётся только Г5 с самого газопровода?
|
| |
|
|
| Y_2 | Дата: Четверг, 14.08.2025, 11:40 | Сообщение # 14 |
Опытный проектировщик
Группа: Чертежник
Сообщений: 99
Репутация: 14
Город: Чебоксары Замечания: 0%
Статус: Оффлайн
| Цитата juli303 (  ) Y_2, спасибо Вам, нашла данную формулировку в паспорте. То есть тогда получается с регулятора ничего выводить не надо и остаётся только Г5 с самого газопровода? Если заглушите ПСК, то нет, с регулятора ничего выводить не надо. Я применял регуляторы Madas RG/2MB в составе ГРУ котельных. По требованию местного ГРО встроенные ПСК в них заглушались и на линию ставились отдельные сбросные клапана.
Вопрос в том, является ли регулятор в Вашем случае стабилизатором, т.е. работает в рамках одной категории давления.
Сообщение отредактировал Y_2 - Четверг, 14.08.2025, 11:42 |
| |
|
|
| juli303 | Дата: Четверг, 14.08.2025, 11:43 | Сообщение # 15 |
Начинающий проектировщик
Группа: Пользователи
Сообщений: 24
Репутация: 0
Город: Крылатый Замечания: 0%
Статус: Оффлайн
| Y_2, то есть отдельно всё равно нужно предусмотреть сбросной клапан? Ещё раз извиняюсь за свою некомпетентность(
|
| |
|
|